︎
Matthias Malicki
Architektur
Hotel Raschaglius
Living in Clusters
Schwebende Bühne 1:1
Open Studio - Arch
Stall der Zukunft
Die Lichtung
Industrial Harbor Restaurant
Grüner Wasserturm
Water Park Care Center
Tree-Box for Rio
Bubble Peace Pavilion
Studio
Zeichnungen
Kermaik
Stein
Info
Kontakt
Impressum
Datenschutz
︎ Instagram
︎ LinkedIn
︎ Facebook
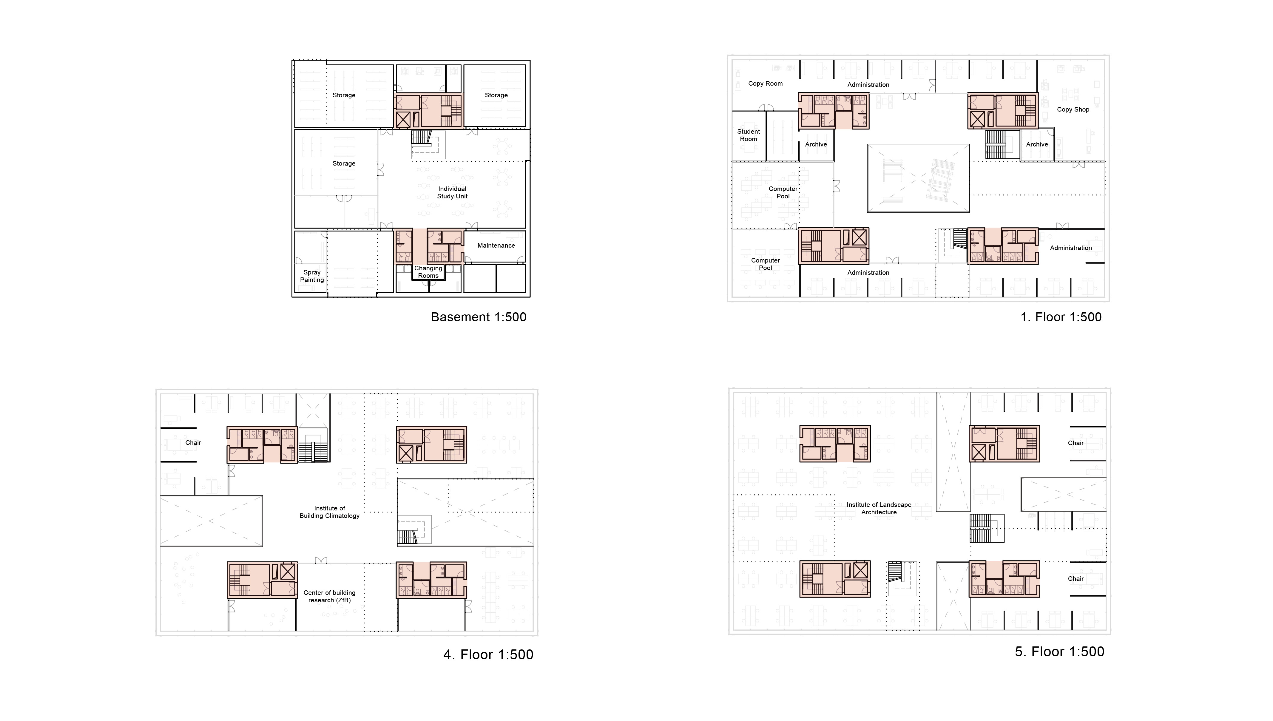
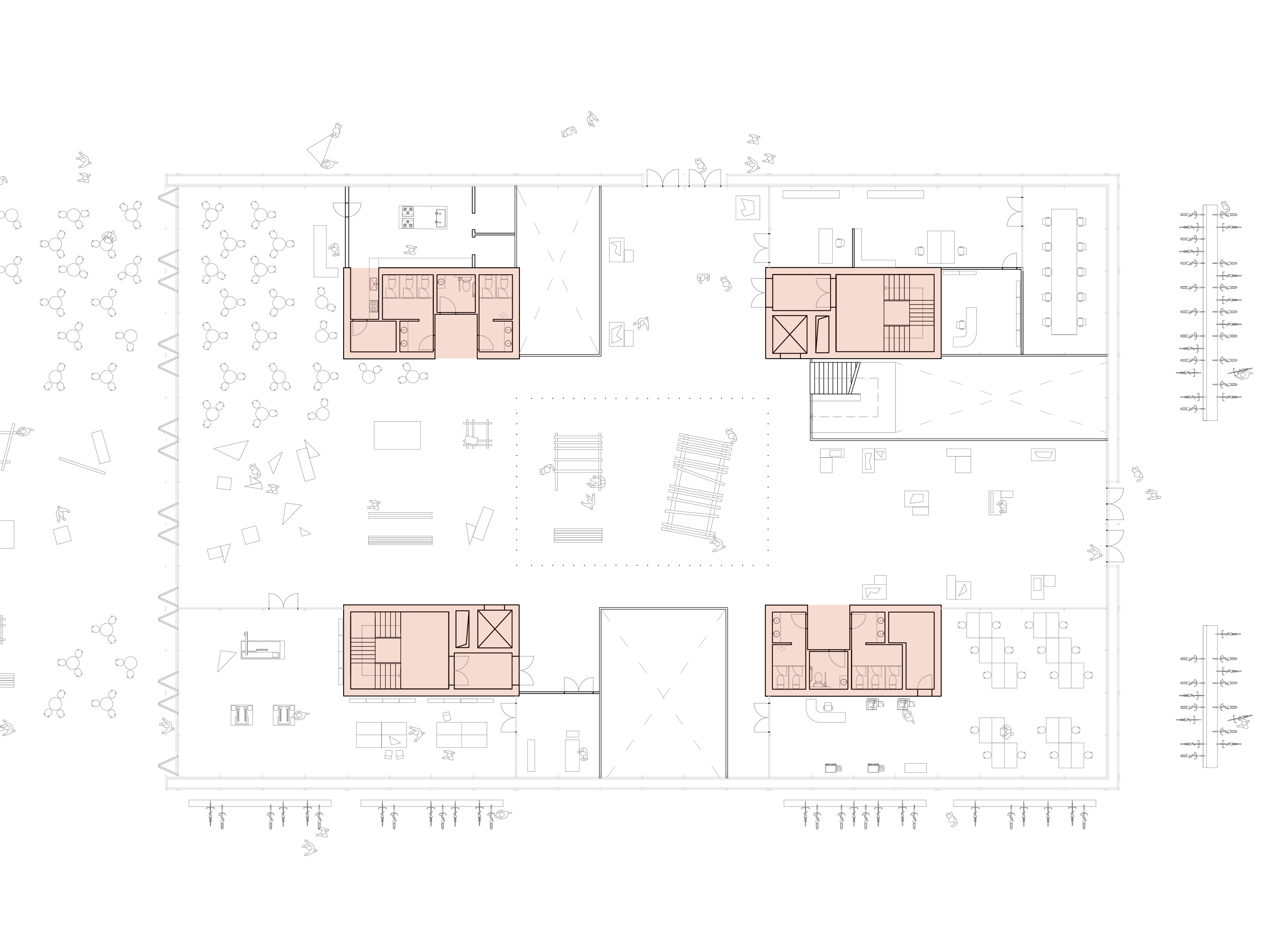
Open Studio - New Architecture Faculty Dresden
Anerkennung
im Rahmen des Wettbewerbs der TU Dresden.
Betreut durch:
Prof. Dipl.-Ing. Jörg Springer
| M.Sc. Dipl.-Ing. Max Wasserkampf
© Matthias Malicki
Impressum
|
Datenschutz
Mark