︎
Matthias Malicki
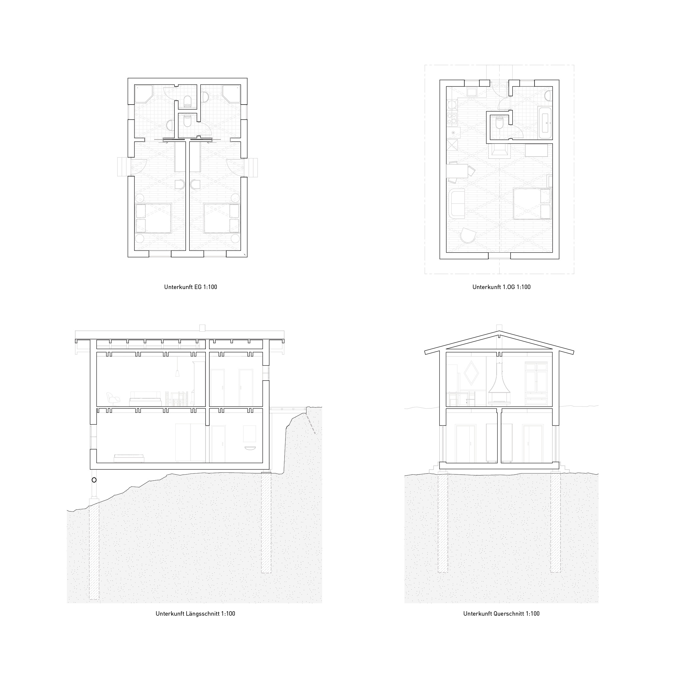
Hotel Raschaglius
Living in Clusters
Schwebende Bühne 1:1
Open Studio - Arch
Stall der Zukunft
Die Lichtung
Industrial Harbor Restaurant
Grüner Wasserturm
Water Park Care Center
Tree-Box for Rio
Bubble Peace Pavilion
Info
Kontakt
︎ Instagram
︎ LinkedIn
︎ Facebook
Hotel Raschaglius
Masterarbeit - Betreut durch:
Prof. Dipl.-Ing. Jörg Springer
|
Prof. Dipl.-Ing. Johannes Kuehn
| Dr.-Ing. Stephan Schütz
Mark